Reforma de una cocina
Esta cocina pertenece a una vivienda unifamiliar, y su reforma integral, llevada a cabo por el estudio barcelonés de interiorismo Clysa, atendió principalmente a la integración visual de los espacios de cocina-salón, para facilitar la unidad de la actividad de la familia.
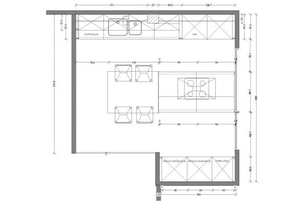
La principal modificación que Cylsa propuso en la reforma de esta cocina fue la redistribución de las oberturas de la misma para conseguir una cocina abierta al salón, muy funcional y pensada para pasar mucho tiempo en ella.

Para conseguir este equilibrio estético se consideraron la simplicidad de líneas, volúmenes y colores que proporcionaran continuidad espacial…. y una serie de medidas a este respecto.

El acceso a la cocina se realiza a través de un cristal transparente, que conecta la cocina con el resto de las estancias. Por otra parte, la cocina se distribuyó en tres líneas paralelas; la primera es la zona de aguas y horno, la segunda es la península con zona de cocción y mesa office, creada como eje principal de la cocina, y la tercera es la zona de columnas con nevera y congelador integrado y módulos porta utensilios.

La elección del tipo de mobiliario fue fundamental para crear volúmenes limpios y con una imagen libre de ornamentos. Esta sencillez en el diseño del mobiliario ayuda a mitigar el impacto visual del pilar que se encuentra a la derecha de la zona de aguas.

Simplicidad también a través del color, pues se trata de una apuesta monocromática. Y como contrapunto a la frialdad que este blanco puro podía trasmitir, una de las paredes de la cocina se revistió con piedra en tonos tierra.

Del volumen de la península surge la mesa de desayunos y se sustenta con una rotunda pata redonda de acero inoxidable. El objetivo conseguido es la visualización completa y la conexión de las piezas como un único bloque.

El resultado es una cocina conceptual que promueve la actividad y la vida en su interior.

Oficinas Efece
Una casa en Ibiza
Minipiso
Finca en Ávila
Una vivienda unifamiliar en A CoruñaSi te ha interesado Reforma de una cocina, puedes seguir explorando más contenidos en la categoría Interiorismo.
